Kingston noodle bar could get outdoor seating area
By James Bools 10th Dec 2025
By James Bools 10th Dec 2025
A Kingston noodle bar has submitted a Pavement Licence Application to the council.
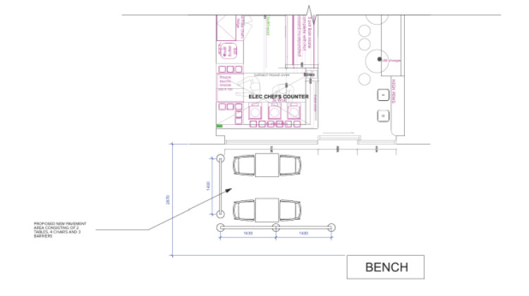
Overlord Noodle, which is located on Clarence Street, is seeking permission to have an outdoor seating area
If its application is successful, the eatery plans to have four chairs and three barriers, which will be situated to the left of the entrance.

The proposed seating area will operate from 11am-8.30pm seven days a week.
Residents have until 18 December to make representations on this application and can do so here.
CHECK OUT OUR Jobs Section HERE!
kingston vacancies updated hourly!
Click here to see more: kingston jobs
Share: